605 - 1 Edgewater Drive, Toronto (waterfront Communities), Ontario

$780,000

Previous Next

2

Beds

2

Baths

About 605 - 1 Edgewater Drive

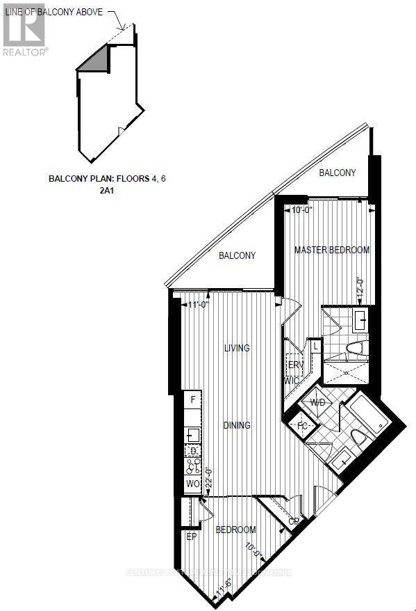
Breathtaking Southeast Lake Views From. This spacious 751 sq ft suite features soaring 9 ft ceilings and engineered laminate flooring throughout. The primary bedroom boasts stunning lake views, a large walk-in closet with built-in shelves, and a sleek 3-piece ensuite. Wake up to serene waterfront views and abundant natural light. The modern kitchen is equipped with built-in appliances, full-height cabinetry, and elegant quartz countertops - the perfect blend of style and functionality. Pet Friendly & Steps To Dog Park. Take A Stroll Down The Boardwalk Or Catch The Ferry To The Island. Sugar Beach Just Steps Away! Ttc Bus, Loblaws, Lcbo, St Lawrence Market, Distillery District Are Also Close By. Includes 1 parking and 1 locker. (id:36535)

Features of 605 - 1 Edgewater Drive

Listing # C12328520
Price $780,000
Bedrooms 2
Bathrooms 2.00
Type Single Family
Sub-Type Condominium/Strata

Community Information

Address 605 - 1 Edgewater Drive
Subdivision Waterfront Communities C8
City Toronto (waterfront Communities)
Province Ontario
Postal Code M5A0L1

Amenities

Amenities Beach, Park, Public Transit, Security/Concierge, Exercise Centre, Party Room, Storage - Locker
Features Cul-de-sac, Balcony, In suite Laundry
Parking Spaces 1
Parking Garage, Underground
# of Garages 1
View View
Is Waterfront Yes
Waterfront Waterfront
Has Pool Yes
Pool Outdoor pool

Interior

Heating Natural gas Forced air
Cooling Central air conditioning
Fireplace No
Has Basement No
Basement Type None

Exterior

Exterior Concrete

Listing Details

OfficeCourtesy Of CENTURY 21 ATRIA REALTY INC.

Listing Map