176 Holloway Trail, Middlesex Centre (ilderton), Ontario

$1,150,000

Previous Next

4

Beds

3

Baths

About 176 Holloway Trail

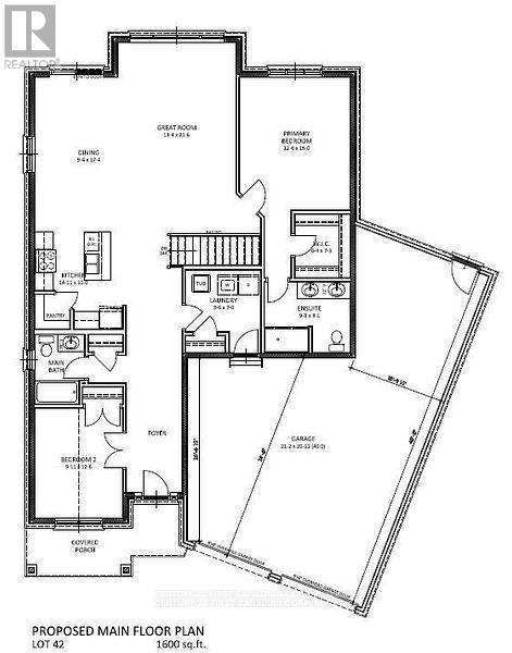
TO BE BUILT. This custom designed one floor by former Home Lottery Builder Vranic Homes encompasses all the features you want in your one floor: spacious, open concept, backing onto protected green space on a premium pie shaped lot. Tandem third garage for the workshop enthusiast! As a special incentive the basement will be completely finished to our standard specs; main floor has upgrades included in the price, including engineered hardwood flooring. Visit our model at 133 Basil Cr in Ilderton, open Saturdays and Sundays from 2-4 or by appointment. Other models and lots are available, ask for the complete builder's package. (id:36535)

Features of 176 Holloway Trail

Listing # X12381692
Price $1,150,000
Bedrooms 4
Bathrooms 3.00
Acres 0.00
Type Single Family
Sub-Type Freehold
Style Bungalow

Community Information

Address 176 Holloway Trail
Subdivision Ilderton
City Middlesex Centre (ilderton)
Province Ontario
Postal Code N0M2A0

Amenities

Utilities Cable, Electricity, Sewer
Features Flat site, Dry, Sump Pump
Parking Spaces 5
Parking Attached Garage, Garage
# of Garages 2
Is Waterfront No
Has Pool No

Interior

Appliances Garage door opener remote(s)
Heating Natural gas Forced air
Cooling Central air conditioning, Air exchanger
Fireplace No
# of Stories 1
Has Basement Yes
Basement Type Full (Partially finished)
Basement Development Partially finished

Exterior

Exterior Brick, Vinyl siding
Lot Description 37.4 x 114.6 FT|under 1/2 acre
Foundation Poured Concrete

Listing Details

OfficeCourtesy Of CENTURY 21 FIRST CANADIAN CORP

Listing Map